Bilocale in affitto

Torino, Corso Casale - Madonna Del Pilone - Lomellina - Reaglie
€ 650 / mese
2 locali 2 locali
55 Mq 55 Mq
1 bagno 1 bagno

Bilocale in affitto

Torino, Corso Casale - Madonna Del Pilone - Lomellina - Reaglie

Descrizione annuncio

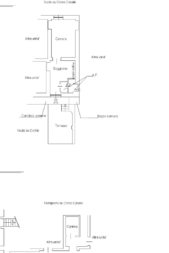
In affascinante stabile d’epoca rivisto nelle parti comuni, proponiamo in affitto bel bilocale con terrazzo, situato in Corso Casale nei pressi della Madonna Del Pilone. Disponibile dal 1° marzo

L’appartamento, parzialmente ammobiliato, è così composto:

Soggiorno luminoso con soppalco

Cucina arredata

Bagno con antibagno dotato di doccia

Terrazzo privato, ideale per momenti di relax all’aperto

Riscaldamento autonomo

Lo stabile d’epoca conferisce charme ed atmosfera. Posizione strategica, comoda ai mezzi pubblici, servizi, negozi ed aree verdi della zona precollinare.

Soluzione ideale per single o coppie referenziate. Solo contratto transitorio.

Per maggiori informazioni e per prenotare una visita, contattaci al numero 011/8999266 oppure vieni a trovarci in Corso Casale n° 128 a Torino.

Mostra tutto

Nelle vicinanze

Trasporto pubblico Trasporto pubblico
Cadore
Cadore
560 m
Pallanza
Pallanza
610 m
San Sebastiano
San Sebastiano
70 m
Marco Aurelio
Marco Aurelio
80 m
Murazzi
2,9 Km
Ricariche auto elettriche Ricariche auto elettriche
Bluetorino Corso Cadore
510 m
LIDL Torino Via Bologna
2,5 Km
evway TO Plana
2,6 Km
NH Collection Torino Piazza Carlina
2,9 Km
Scuole Scuole
Scuola internazionale Spinelli
110 m
Scuola Primaria Statale Alessandro Antonelli
420 m
Scuola Media Statale Guglielmo Marconi
700 m
Scuola Primaria "Gozzi"
810 m
Saint Denise scuola paritaria
1,0 Km
Farmacia Farmacia
Santa Croce
70 m
Boccaccio
430 m
Caruso
550 m
Comunale 21- Afc
620 m
Marinello
690 m
Ospedali Ospedali
Villa Maria Pia
1,4 Km
Presidio Sanitario Gradenigo
1,6 Km
Azienda Asl TO2 Circoscrizione 7
1,8 Km
Presidio Ospedaliero Major
2,1 Km
San Camillo
2,2 Km
Supermercati Supermercati
Coop
620 m
Crai
680 m
Ekom
810 m
Supermercati
1,0 Km
Carrefour Express
1,1 Km
Negozi Negozi
Il Fornaio
420 m
Dalla Terra al Cielo
1,5 Km
Pastificio Virgilio
1,7 Km
Pastificio Renato
1,7 Km
Negozio Leggero
1,9 Km
Bar Bar
Discoteca Maxxxim
860 m
Angeli del Caffé
990 m
Caffè della Caduta
1,9 Km
Locanda Johar
2,2 Km
All'improvviso
2,3 Km
Ristoranti Ristoranti
L'Isola del Pescatore
110 m
Revolution
160 m
La Via della Seta
540 m
De Amicis
640 m
Antico Casale
640 m
Mostra tutto

Caratteristiche

Rif.:
61179652
Piano:
1 di 3 con ascensore (Piano basso)
Balconi:
1
Terrazzi:
1
Camere da letto:
1
Arredamento:
Parziale
Mostra tutto
Prezzo Prezzo
€ 650 / mese
Spese annue Spese annue
€ 720

Classe Energetica

F
F
F
F
F
F
F
F
F
EP globale non rinnovabile:
170.53 kW h/m² anno
EP invernale del fabbricato:
EP estiva del fabbricato:
Anno di costruzione:
1910
Riscaldamento:
Autonomo
Tipo impianto:
A radiatori
Tipo alimentazione:
Metano

Ti interessa visionare l'immobile?

Fissa un appuntamento  Fissa un appuntamento

Richiedi informazioni

Clicca su Leggi per aprire l'informativa
* Questi campi sono obbligatori
Affiliato
Studio Superga Snc
Corso Casale, 128/a 10132 Torino (TO)

Il nostro staff


  • Vincenzo Campolongo
    Affiliato

  • Sonia Bennardo
    Affiliata

  • Valentina Cavazzini
    Coordinatrice

  • Giovanni Bennardo
    Collaboratore
Corso Casale, 128/a 10132 Torino (TO)
Zona: Collina - Borgo Po - Madonna del Pilone - Sassi - B.ta Rosa
Mostra su mappa
Orari: Da lunedì a venerdì 9.00 / 12.30 - 14.30 / 20.30 Sabato 9.00 / 12.30 - 15.00 / 18.30
Affiliato
Studio Superga Snc
Corso Casale, 128/a 10132 Torino (TO)

2026 Tecnocasa Franchising S.p.A. - P. IVA 08365160152 - Via Monte Bianco 60/A 20089 Rozzano (MI). Ogni agenzia ha un proprio titolare ed è autonoma. Privacy policy | Policy utilizzo | Cookie policy